DFC与SketchUp高效施工圖培訓

模型即圖紙

模型即圖紙,高效一體化出圖

DFC 可自動生成與模型實時關聯的全套施工圖,修改模型即可同步更新,保證精度與一致性。

這一體化方式大幅提升效率,減少重復操作,實現快速交付。

模型即圖紙

模型即圖紙,高效一體化出圖

DFC 可自動生成與模型實時關聯的全套施工圖,修改模型即可同步更新,保證精度與一致性。

這一體化方式大幅提升效率,減少重復操作,實現快速交付。

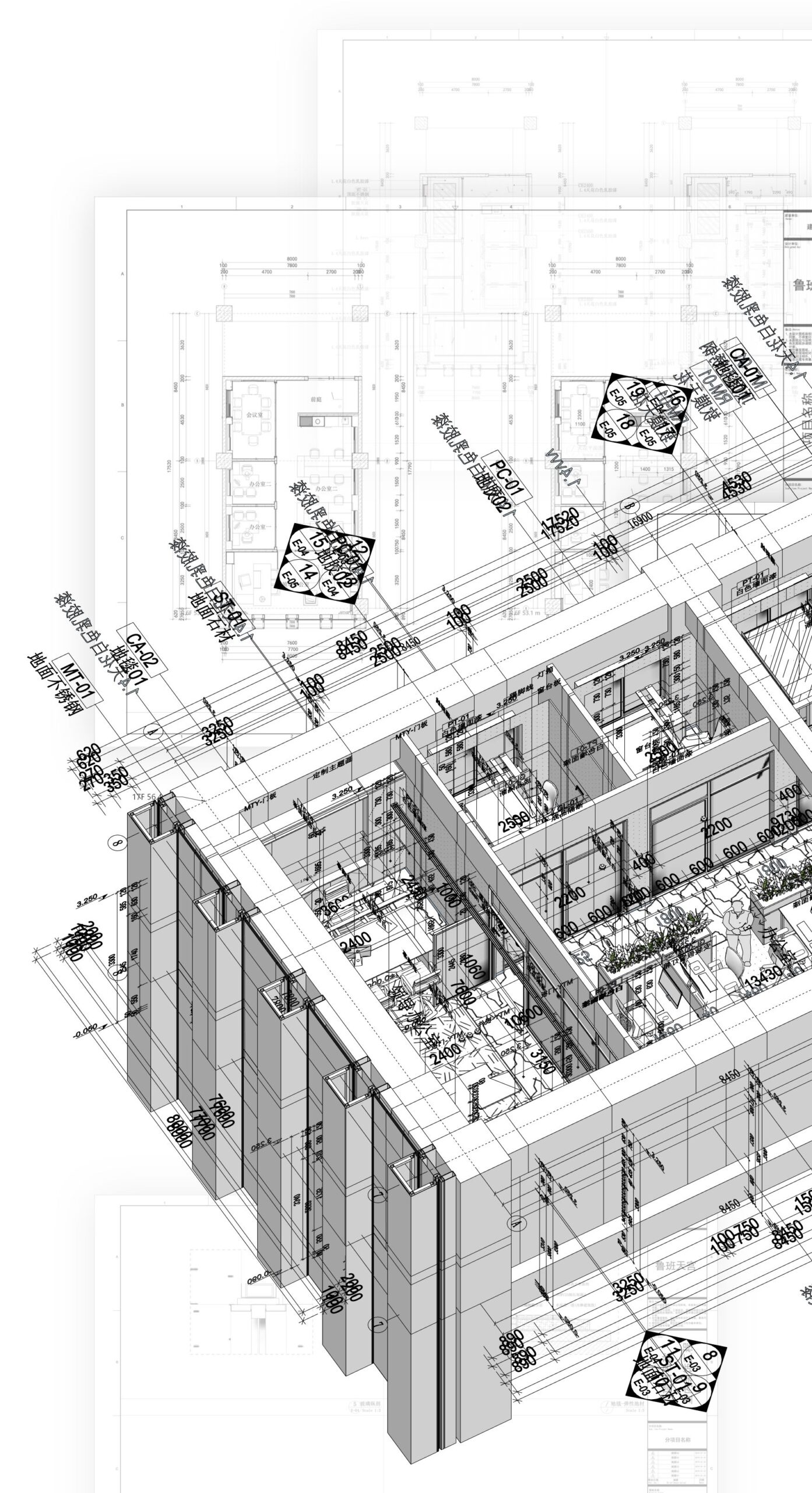
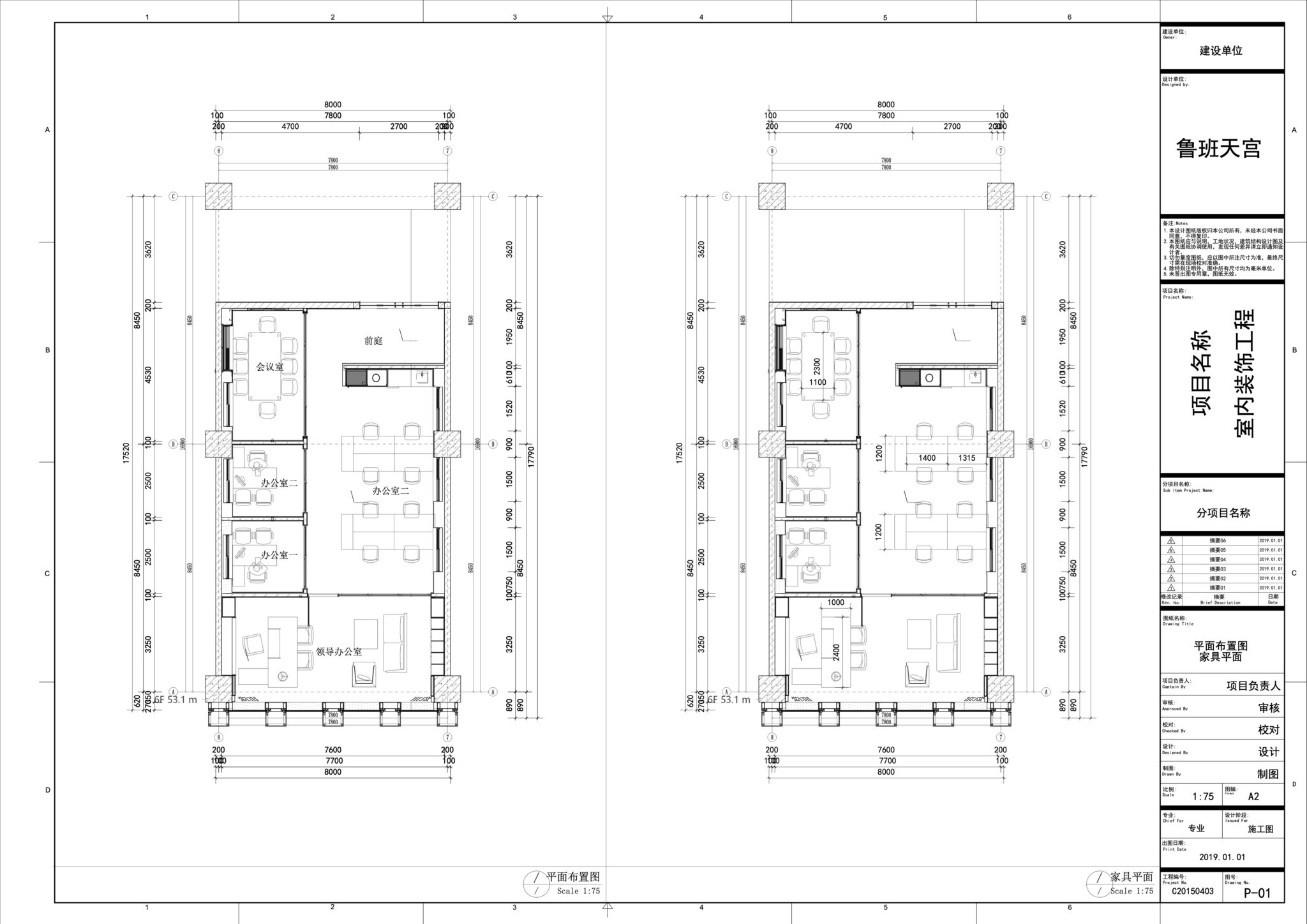
平面圖
平面圖
立面圖
立面圖
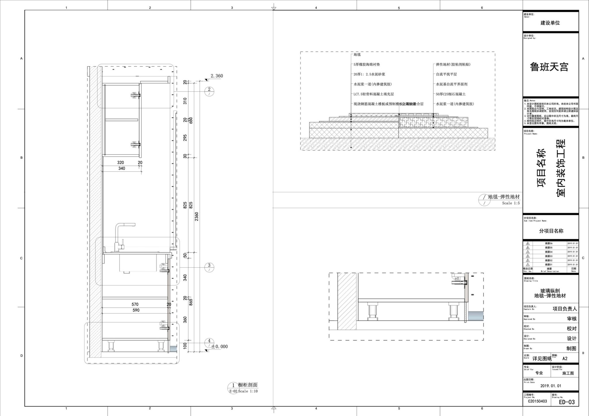
大樣圖
大樣圖

適用性廣

各行各業,都是專業利器。

酒店
酒店
住宅
住宅
會議中心
會議中心
體育場館
體育場館
醫院
醫院
商場
商場

告別「熬夜畫圖」時代

模型即施工圖,高效交付。

用 DFC 搭配 SketchUp,施工圖從此不再是耗時的瓶頸!一鍵生成高精度施工圖,甩掉繁瑣製圖的枷鎖,幫你省下大量人工成本,讓項目從設計到交付全面提速!

模型到 CAD,無縫圖層保留

導出 CAD,還原你的習慣。

DFC 從 SketchUp 導出 CAD 時圖層保留完整,用戶可以按照自己的習慣配置圖層,而且導出的 CAD 圖紙能直接打印,無需額外處理。

10005

自動填充和材料標注

填充、標注一次搞定!

還借助 DFC,所有填充與材料標注均根據預設全部自動完成,直接進入打印或交付環節。

10006

DFC 智能文本標注

出圖前,我們只需對材料信息進行預設,然後點擊模型上的標注點,所有文本標注即可智能批量生成。材料修改後,標注信息還能一鍵全部刷新。相比傳統 CAD,效率提升數倍,精准又省時。DFC 智能文本標注——快速、精准、全部自動。

DFC+SKETCHUP立面圖紙系統

製圖,又快又規範。

立面圖是DFC系統中快速繪製圖紙的重要組成部分,快速獲得剖切面後批量創建場景,從而添加主要的圖紙信息。

培訓質量保障

行業服務認可

與其他培訓課程有很大區別的是,優象培訓機構講師獲得SketchUp官方講師認證,並獲得SketchUp認可的培訓合作機構。優象幫助上萬名學員獲得SketchUp應用技能,並能夠應用到實際工作中,從中創造了大量的作品。

培训质量保障-1-scaled

多對一-輔導群

快速解決學習和工作問題

優象對報名課程的每一-位學員, 都要求進入多對一的微信群進行全方位的學習服務和輔導,群內有多位對於的專業老師和客服對接所有的學習事情,將會成為最佳的解決問題的高效途徑。

编组-9-1

DFC與SketchUp高效施工圖培訓

現接受報名

從模型到施工圖,一模到底。

您将会掌握

  • 如何对DFC出图进行规范化建模
  • 如何使利用已经做好了的模型衔接DFC出图
  • 一模到底方法:学会制作SU模型输出平面类图纸
  • 一模到底方法:学会制作SU模型输出天花类图纸
  • 一模到底方法:学会制作SU全套立面图纸
  • 一模到底方法:学会制作SU大样图纸
  • 导出PDF图纸流程
  • 导出CAD图纸流程

学前要求

  • SU进阶用户
  • CAD施工图深化人员

如何上课

  • 上课方式:录播+定期在线辅导+线下专家在线答疑
  • 课程周期:29节课时
10007

DFC-機電系統建模培訓

NT$6000
  • DFC機電建模培訓
  • DFC-普通版
  • 永久學習同課程免費更新

DFC施工圖培訓培訓

NT$9000
  • DFC施工圖培訓培訓
  • DFC-普通版
  • 永久學習同課程免費更新

DFC施工圖課程+專業版

NT$15000
  • DFC-專業版1年(NT$8700)
  • DFC施工圖培訓(NT$9000)
  • CAD出圖功能
12345